Паровой котел на дровах 500 кг (0.5 т пара) - 115°С -0,07 МПа / 0,7 кгс/cм² в Экибастузе

Котел паровой 500 кг 115 С на дровах
Паровой котел 500 кг 115 С на дровах
Чертеж парового котла 500 кг 115 С на дровах
Паровой котел 500 кг 115 С на дровах чертеж
Паровой дровяной котел 500 кг в час с температурой 115 С
Дровяной паровой котел 500 кг в час с температурой 115 С
Дровяной жаротрубный котел 500 кг пара в час 115 С
Жаротрубный котел 500 кг пара в час 115 С на дровах
Котел паровой 500 кг пара в час 115 С для влажных дров
Паровой котел 500 кг пара в час 115 С для влажных дров
Паровой котел 500 кг пара в час 115 С на сырых дровах промышленный
Промышленный паровой котел 500 кг пара в час 115 С на сырых дровах
Топка подовая парового котла 500 кг 115 С на дровах
Подовая топка парового котла 500 кг 115 С на дровах
Чертеж дровяного парового котла 500 кг 115 С
Дровяной паровой котел 500 кг 115 С чертеж
Котел паровой 500 кг 115 С на дровах
Чертеж парового котла 500 кг 115 С на дровах
Паровой дровяной котел 500 кг в час с температурой 115 С
Дровяной жаротрубный котел 500 кг пара в час 115 С
Котел паровой 500 кг пара в час 115 С для влажных дров
Паровой котел 500 кг пара в час 115 С на сырых дровах промышленный
Топка подовая парового котла 500 кг 115 С на дровах
Чертеж дровяного парового котла 500 кг 115 С
Цена
5 914 800 ₸
От 5 914 800 ₸ с доставкой до г.
Логотип WhatsApp Связаться
по WhatsApp
  • Непрерывная выработка сухого пара независимо от нагрузки котла
  • Отсутствие температурных расширений обеспечивает надежность конструкции
  • Подпитка котла производится даже холодной водой +5 ºС
  • Удобная очистка поверхностей нагрева без остановки котла
  • Работа на самотяге, дымосос не требуется даже при плюсовых температурах

Технические характеристики

МаркаSTEAMEXPERT
ВидПаровой котел КП
Вид топкиРучная, Колосники
Конструкция котлаЖаротрубный
Производительность500 кг/ч
Производительность0.5 т/ч
Максимальная тепловая мощность0.37 МВт
Диапазон регулирования мощности50-100 %
ТопливоТвердое, Дрова
Низшая теплота сгорания проектного топлива2440 кКал/кг
Влажность топлива40 %
Насыпная плотность ДРОВ350 кг/м³
КПД котла на ДРОВАХ, не меннее77 %
Расход топлива178 кг/ч
Расход топлива0.51 м³/ч
Расход условного топлива62 кг/ч
Температура пара, не более110, 115 °С
Давление пара, не более0.07 МПа
Давление пара, не более0.7 (кгс/см²)
Давление пара, не более0.7 бар
Полный объем котла2.1 м³
Объем паровой части0.21 м³
Аэродинамическое сопротивление3.1 (0.31) Па (мм. вод. ст.)
ТягаЕстественная
Объем топочной камеры1.08 м³
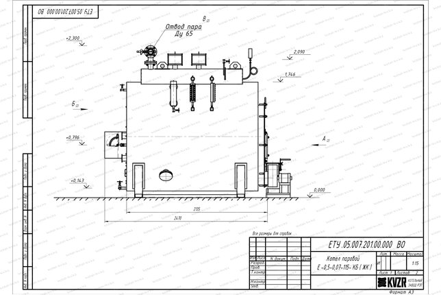
Размер топочной камеры, длина*ширина*высота1250х1100х850 мм
Активная площадь решетки горения1.13 м²
Присоединительные размеры выхода пара65 Ду
Присоединительные размеры по водяному тракту25 Ду
Присоединительные размеры по дымовым газам / диаметр дымовой трубы400 мм
Габаритные размеры котла, длина*ширина*высота2500х1800х2100 мм
Масса2400 кг
ЭнергоэффективностьВысокая
БрендSTEAMEXPERT

Паровой котел STEAMEXPERT Е 0.5 0.07 115 КБ на дровах в Экибастузе

Промышленный паровой котел на дровах Е 0.5 Экибастуз предназначен для производства пара температурой до 115 °С и давлением 0.07 МПа на технологические нужды для вашего производства. Парогенератором пользуются бетонные заводы при производстве ЖБИ изделий, химические предприятия, строительные организации, воинские части, больницы, бани, предприятия нефтегазовой, кожевенной, пищевой промышленности.

Наши жаротрубные котлы STEAMEXPERT Е 0,5 0,07 имеют следующие преимущества

  • Большая поверхность испарения препятствует выносу капель воды и увеличивает скорость испарения
  • Дополнительное разделение пара от воды в паросборной камере. Повышается качество пара путем улавливания капелек воды из пара
  • Большая паровая камера обеспечивает непрерывную подачу пара при любой нагрузке и сокращает время выхода на заявленную производительность
  • Эффективная конвективная часть котла способствует высокой скорости нагрева воды
  • Отсутствие тепловых расширений благодаря комбинированной компановке
  • Большой водяной объем котла 0,5 т позволяет производить подпитку холодной водой +5° без температурных колебаний
  • Чистка конвективного пакета паром без остановки котла. На задней стенке агрегата находятся лючки для обдувки. Обдувка производится аппаратом для обдувки при минимальной нагрузке и максимальном давлении

Жаротрубный дровяной паровой котел пар 500 кг низкого давления можно перевести в водогрейный режим, изменив схему подключения.

Устройство парового котла 500 кг в час на дровах

Промышленный стальной паровой котел КП 500 на дровах изготавливается в горизонтальном исполнении и состоит из двух цилиндров, паросборника, конвективной части. Цилиндры размещаются один в другом и соединяются фланцами. Внутренний цилиндр – это топочная часть генератора. Межцилиндрическое пространство заполняется водой, сверху приваривается паросборник, на который крепятся 2 предохранительных клапана.

На фронтовой плите имеется дверка для загрузки дров и древесного топлива. В нижней части камеры горения укладываются колосники, на которых происходит горение топлива. К плите крепятся воздуховод и вентилятор для подачи воздуха в топку. Продукты сгорания выводятся чрез дымовую трубу. В основании дымовой трубы установлен предохраняющий клапан.

Вода в цилиндрический котел steam 500 подается насосом. На паровой промышленный котел желательно устанавливать рабочий и резервный насосы. Дренажи и воздушники производят дренирование трубной системы от шлама и удаление скапливающего воздуха.

Безопасность установки обеспечивает легкоплавкая пробка и клапаны. При повышении давления выше допустимого, срабатывают клапаны, осуществляя автоматический выпуск пара. В случае понижения воды ниже аварийного уровня пробка нагревается, наполнитель пробки плавится, производится сброс давления пара, гасится пламя.

Автоматика парового котла предусмотрена для управления и защиты. В случае отклонения от заданных параметров происходит световой и звуковой сигнал.

Дровяной паровой котел Е 0.5 0.07 115 КБ принцип работы

Дрова сгорают в топке парового котла Е 0 5 0 07, окруженной водяной охлаждаемой рубашкой. Продукты горения проходят через трубный пучок и выходят в верхней части генератора.

Трубный пучок находится за камерой горения. Трубки заполнены водой и омываются горячими газами, за счет чего происходит теплообмен. Пар образуется при испарении нагреваемой воды и собирается в верхней части котлоагрегата, над которой выполнена паросборная камера, далее через паропровод направляется потребителю на технологические нужды.

Современный генератор пара работает без дымососа, тягу в котле обеспечивает дымовая труба.

Монтаж и подключение

Горизонтальный паровой котел 500 кг в час на дровах для производства пара поставляется блоками максимальной заводской готовности. Агрегат устанавливается в котельной на специально подготовленную ровную поверхность. Подсоединяется по воде, устанавливается запорная арматура на подводящем трубопроводе и отводящем паропроводе, предохранительные клапаны и контрольно-измерительные приборы. Подсоединяется вентилятор и автоматика.

Купить паровой котел Е 0.5-0.07-115 Д на дровах

Для того что бы купить паровой дровяной котел 500 кг пара в час в Экибастузе вы можете сделать заявку по телефону +7-7172-69-59-73, либо оформить заявку онлайн. Менеджеры дадут консультацию по подбору вспомогательного оборудования для выбранных вами моделей и рассчитают стоимость доставки. Транспортирование котлоагрегата и вспомогательного оборудования до объекта осуществляется автомобильным транспортом.

Комплект поставки

Клапан предохранительный КПС
Клапан предохранительный самопритирающийся
2 штуки
Вентилятор
Вентилятор 2 с дв. 0,37/1500
1 штука
Вентиль Ду 20
Вентиль Ду 20
1 штука
Шаровый кран
Кран шаровый
6 штук
Указатель уровня
Указатель уровня
2 штуки
Устройство запорное Ду 20
Запорное устройство Ду 20
2 штуки
Затвор ДУ 65
Затвор Ду 65
1 штука
Клапан обратный
Клапан обратный
1 штука
Кран трехходовой ДУ 15
Кран Ду 15
2 штуки
Манометр ДМ2005 Сг 10.0 кгс см2
Манометр ДМ2005Сг 10,0 кгс/см2
1 штука
Манометр МП 160
Манометр МП 160
1 штука
Колосники котлов
Колосник 1100x220
5 штук

Дополнительно потребуется

Дымовые трубы
Цена по запросу
CDM насос
Насос CDM 1-3 (0.37 кВт)
Цена по запросу
Pedrollo насос
Насос Pedrollo CP-132 (0.55 кВт)
Цена 190 164 тг.
Легкоплавкая пробка
Пробка легкоплавкая
Цена 12 720 тг.
Газоход котла
Цена по запросу

Похожая продукция

Котел паровой 500 кг 130 С на угле
Паровой котел на угле 500 кг (0.5 т пара) - 130°С -0,17 МПа / 1,7 кгс/cм²
Производительность, кг/ч500
ТопливоТвердое, Уголь
Температура пара, не более, °С130
Давление пара, не более, МПа0.17
Цена 6 309 120 тг.
Котел паровой 0.5 т 170 С на угле
Паровой котел на угле 500 кг (0.5 т пара) - 170°С -0,9 МПа / 9 кгс/cм²
Производительность, кг/ч500
ТопливоТвердое, Уголь
Температура пара, не более, °С170
Давление пара, не более, МПа0.9
Цена 7 275 840 тг.
Котел паровой 500 кг 115 С на угле
Паровой котел на угле 500 кг (0.5 т пара) - 115°С -0,07 МПа / 0,7 кгс/cм²
Производительность, кг/ч500
ТопливоТвердое, Уголь
Температура пара, не более, °С110, 115
Давление пара, не более, МПа0.07
Цена 5 914 800 тг.
Котел паровой 300 кг 115 С на дровах
Паровой котел на дровах 300 кг (0.3 т пара) - 115°С -0,07 МПа / 0,7 кгс/cм²
Производительность, кг/ч300
ТопливоТвердое, Дрова
Температура пара, не более, °С110, 115
Давление пара, не более, МПа0.07
Цена 3 892 320 тг.
Котел паровой 700 кг 115 С на дровах
Паровой котел на дровах 700 кг (0.7 т пара) - 115°С -0,07 МПа / 0,7 кгс/cм²
Производительность, кг/ч700
ТопливоТвердое, Дрова
Температура пара, не более, °С110, 115
Давление пара, не более, МПа0.07
Цена 6 773 400 тг.

Сертификаты товара

Сертификат на котлы отопительные паровые КП
Сертификат на котлы отопительные паровые КП

Опросные листы

Все опросные листы
Опросный лист на паровой котел
Заполнить опрос

Собственное производство

Котельный завод производит
  • Паровые котлы от 300 кг до 2.5 тонны пара в час
  • Промышленные водогрейные котлы от 150 КВт до 4 МВт на всех видах топлива
  • Механические топки ТШПМ, шурующая планка и ТЛПХ, ленточное полотно прямого хода
  • Циклоны для очистки воздуха и дымовых газов для производств и промышленных отраслей
  • Транспортеры и системы топливоподачи и шлакоудаления
Подробнее о производстве
Собственное производство
Смотреть видео
с производства